Trg slovenske osamosvojitve 1
2241 Spodnji Duplek
Na podlagi 138. člena ZUreP-3 (Uradni list RS, št. 199/21, 18/23 – ZDU-1O, 78/23 – ZUNPEOVE, 95/23 – ZIUOPZP, 23/24, 109/24, 25/25 – odl. US in 75/25), župan Občine Duplek z JAVNIM NAZNANILOM obvešča občane in zainteresirano javnost o:
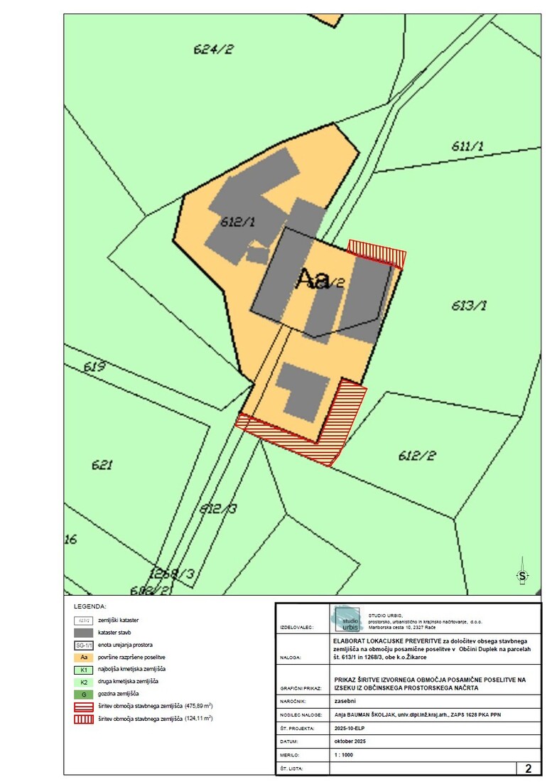
JAVNI RAZGRNITVI ELABORATA 16. LOKACIJSKE PREVERITVE ZA DOLOČANJE OBSEGA STAVBNEGA ZEMLJIŠČA PRI POSAMIČNI POSELITVI NA DELU EUP SG-1/1 v OPN občine Duplek – ID: 6659
Javna razgrnitev ELABORATA bo potekala v času od dne 19.1.2026, do dne 3.2.2026, javno razgrnjeno na spletni strani Občine Duplek https://www.duplek.si/objave/
V okviru javne razgrnitve ima javnost pravico dajati pripombe in predloge na razgrnjeno gradivo. Pripombe in predlogi se lahko do konca javne razgrnitve, pošljejo pisno na naslov Občina Duplek, Trg slovenske osamosvojitve 1, 2241 Sp. Duplek, ali na elektronski naslov obcina.duplek@duplek.si; pri čemer se v rubriki "Zadeva" elektronskega sporočila navede: "Lokacijska preveritev - ID 6659".
Obravnavane bodo le pisne, podpisane in s polnim naslovom opremljene pripombe oziroma mnenja.
Župan Občine Duplek
Mitja Horvat